Brookline House Doctor

Town of Brookline
Brookline, Massachusetts

2011 - 2015

 

TBA Architects, Inc. served as the House Dr. Architectural Consultant for the Town of Brookline in an On-Call/ As-Needed capacity. Project types include survey, planning, design, and construction monitoring services on a wide variety of renovation projects. The contract encompassed all Town buildings: school buildings, town offices, public recreation centers and other facilities. Comprehensive renovation and assessment projects involved building systems of all types, including envelope (roof, windows, and doors); walls (brick, stone and wood frame); access improvements; public safety and interior reconfiguration to address space needs.

 

Cemetery House

 

The Brookline Cemetery House saw accessibility improvements through new ramps and landscaping, and internal reconfiguration for full accessibility of offices and meeting rooms.

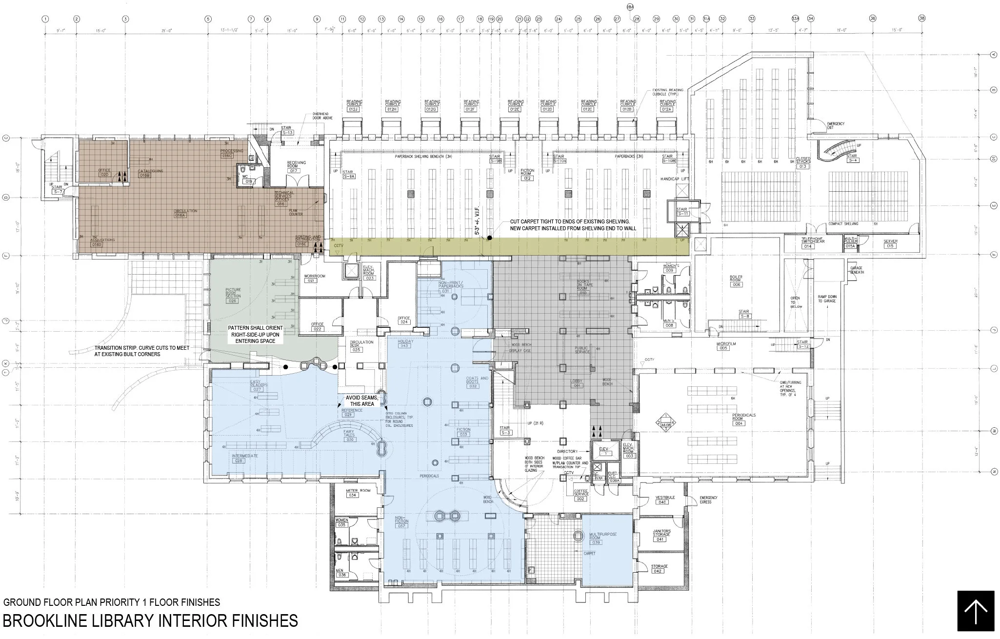
Brookline Library

 

TBA provided the Town of Brookline with renovations to its Main Library through new interior finishes and repair to existing ceilings and ornamental plasterwork.

James Lynch Recreation Center

 

We provided an existing conditions assessment of the Lynch Recreation Center for the Town of Brookline with conceptual plans and cost estimates for future expansion and interior reconfiguration.

Brookline Aquatic Center

 

TBA provided interior renovation services for the Brookline Aquatic Center by converting an existing bathroom space into a family changing room.

Soule Recreation Center

 

TBA provided planning and design services for renovations to the early childhood activity center at the Soule Recreation Center. Work included the children's prep kitchen as well as computer and conference spaces.

Previous
Previous

Norwell Jacobs Farmhouse

Next
Next

Mt. Auburn Cemetery