Girls, Inc.

220 Worthen Street
Lowell, Massachusetts

Completed 2012

 

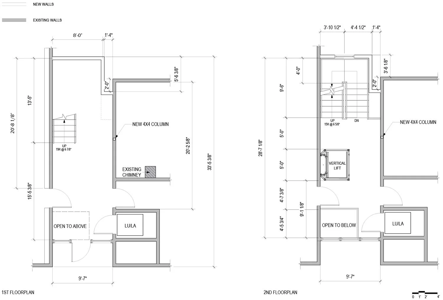
TBA Architects worked with the non-profit organization Girls, Inc to renovate their Lowell branch through expansion and improved accessibility.

We provided full assessment of the Existing Conditions and envelope and interiors evaluation of the structure, including structural repairs required for walls, windows, roof, and floors to determine renovation options for this multiuse/multi-program youth center.  Based on these assessments, building capacity, and compliance requirements for accessibility TBA developed expansion plans, envelope repair recommendations, and Plumbing, Mechanical, and Electrical Systems Solutions.  Study, Design and Construction Services were provided on a largely pro-bono basis as a portion of TBA’s dedication to continuing charitable contributions to the State of Massachusetts.

Next
Next

UMass